Produk
RMU Rangkaian Pengedaran Bandar
  • RMU Rangkaian Pengedaran BandarRMU Rangkaian Pengedaran Bandar
  • RMU Rangkaian Pengedaran BandarRMU Rangkaian Pengedaran Bandar
  • RMU Rangkaian Pengedaran BandarRMU Rangkaian Pengedaran Bandar
  • RMU Rangkaian Pengedaran BandarRMU Rangkaian Pengedaran Bandar
  • RMU Rangkaian Pengedaran BandarRMU Rangkaian Pengedaran Bandar
  • RMU Rangkaian Pengedaran BandarRMU Rangkaian Pengedaran Bandar

RMU Rangkaian Pengedaran Bandar

KXRM6-12 Jenis Rangkaian Pengedaran Bandar RMU yang dihasilkan oleh KEXR, pengeluar peralatan penghantaran dan pengedaran kuasa profesional di China, adalah kabinet rangkaian cincin gas yang kompak 12kV, yang menggunakan gas penebat mesra alam sekitar sebagai medium penebat dan sesuai untuk bekalan kuasa rangkaian cincin, cawangan kabel dan terminal perlindungan rangkaian pengedaran. Produk ini mempunyai ciri -ciri pengurangan, kecerdasan dan kebolehpercayaan yang tinggi, yang memenuhi keperluan pembangunan grid pintar moden.
Model: KXRM6-12
Jenama: KEXR

○ Ciri Reka Bentuk RMU Rangkaian Pengedaran Bandar Jenis KXRM6

KXRM6 Jenis Rangkaian Pengedaran Bandar RMU Mengadopsi Skim Reka Bentuk Modular, dan Unit Modul Asasnya adalah modul suis beban, modul perkakas elektrik gabungan dan modul fungsi khas yang lain. Mana -mana gabungan modul ini membentuk struktur kotak biasa. Dalam modul gabungan, sebarang fungsi adalah kira -kira sama dengan struktur dalaman modul asas.


○ RMU rangkaian pengedaran bandar menggunakan keadaan

KXRM6-12 Jenis rangkaian pengedaran bandar RMU sesuai untuk suhu tinggi dan rendah (+40 ℃ ~ -40 ℃), kelembapan, habuk, pencemaran garam, lombong, ketinggian tinggi (L000) dan persekitaran lain. Rendaman jangka pendek dalam air dalam masa 24 jam tidak menjejaskan penggunaan. Nota: Jika ketinggian lebih tinggi, sila nyatakan ketinggian tertentu.

○ Piawaian

RMU Rangkaian Pengedaran Bandar memenuhi piawaian di bawah

▶ Standard Antarabangsa

IEC60056, IEC60298, IEC60129, IEC60420, IEC60265, IEC60694, dll.

▶ Standard China

GB3804, GB3906, GB11022, dll.

○ Parameter Teknikal Utama KXRM6-12 Rangkaian Pengedaran Bandar RMU

Urban Distribution Network Rmu


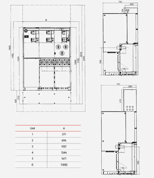
○ Lukisan struktur dan dimensi RMU rangkaian pengedaran bandar

Urban Distribution Network RmuUrban Distribution Network RmuUrban Distribution Network RmuUrban Distribution Network Rmu



Teg Panas: RMU Rangkaian Pengedaran Bandar
Hantar Pertanyaan
Maklumat Hubungan
Untuk pertanyaan mengenai kotak cawangan kabel, suis voltan tinggi, switchgear voltan rendah atau senarai harga, sila tinggalkan e -mel anda kepada kami dan kami akan berhubung dalam masa 24 jam.
X
Kami menggunakan kuki untuk menawarkan anda pengalaman menyemak imbas yang lebih baik, menganalisis trafik tapak dan memperibadikan kandungan. Dengan menggunakan tapak ini, anda bersetuju dengan penggunaan kuki kami. Dasar Privasi
Tolak Terima